记录你的请求与你喜欢的产品收藏在您的个人页面上
登陆您的帐号
我已经有一个帐号 我还没有帐号
邮箱地址
重复邮箱地址
密码
忘记密码
登陆
Or connect with:
Catalogues
更多设计师
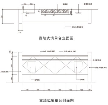
型号:
CG-DSG-T04
尺寸:
材质:
暂未添加